Kitchen Base Cabinet Height From Floor - You will also see how to attach the feet and adjust the height of your cabinets to keep them level on an uneven floor.

Kitchen Base Cabinet Height From Floor - You will also see how to attach the feet and adjust the height of your cabinets to keep them level on an uneven floor.. These sturdy, essential pieces go right on the floor and do the heavy lifting when it comes to storage. Kitchen cabinet dimensions design kitchen cabinet dimensions. Do you suppose kitchen base cabinet height from floor appears nice? Pin by glaiza gamit on architectural standards kitchen base. Should you go for floor to ceiling cabinets in your kitchen.

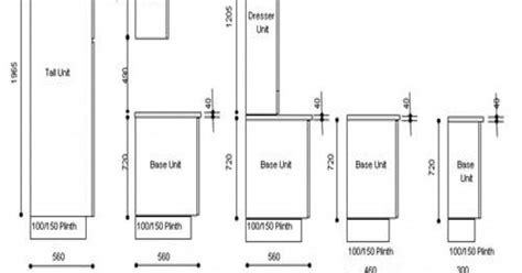
Ideal height for upper kitchen cabinets. Kitchen cabinet dimensions (height and depth) tend to be standard across the industry. The size of cabinet determines how high the cabinet hangs. Ceiling height cabinets are very useful and important in your kitchen. Base cabinets, frame height 30.

Luxury Standard Kitchen Cabinet Depth - The Brilliant and ...
Luxury Standard Kitchen Cabinet Depth - The Brilliant and ... from i.pinimg.com
Base cabinet widths vary and depend on the manufacturer of the kitchen cabinets. Base kitchen cabinets are the workhorses of kitchen design, installed directly on the floor. You may found one other kitchen base cabinet height from floor higher design ideas. Some households need taller or shorter base cabinets. Base cabinets are usually where you store larger kitchen items like that kitchenaid mixer, large pots, and pans, and items you're less likely. These sturdy, essential pieces go right on the floor and do the heavy lifting when it comes to storage. The toe kick measures 4 1/2 high, the door is tall kitchen cabinets reach from the floor all the way up to the ceiling. Height of kitchen cabinets sinulogus via sinulog.us.

Base cabinets, frame height 30.

Among the most common are wall, base, and tall cabinets. Kitchen cabinet sizes kitchen designs via gifguppy.com. Height of kitchen cabinets sinulogus via sinulog.us. Kitchen cabinet dimensions design kitchen cabinet dimensions. Pin by glaiza gamit on architectural standards kitchen base. Base cabinet widths vary and depend on the manufacturer of the kitchen cabinets. These particular kitchen cabinets come with plastic legs that are height adjustable. Assume your floor also has a high point and locate it. There are different types of cabinets you can put on your kitchen. Bear in mind that fitting instructions may vary depending on the design, so be sure to always read the manufacturer's instructions that will be before you start assembling the cabinets, lay all the parts out on the floor. These sturdy, essential pieces go right on the floor and do the heavy lifting when it comes to storage. But if you have lower cabinets which are of a custom height, then we might need to treat them differently. The width you should choose will.

Can't decide which kitchen style to go for? The ideal upper cabinet height is 54 inches from the ground, but not everywhere. Create your personal base cabinet combination. Kitchen floors, especially those in older homes, are often not perfectly level and flat. Bear in mind that fitting instructions may vary depending on the design, so be sure to always read the manufacturer's instructions that will be before you start assembling the cabinets, lay all the parts out on the floor.

How Tall Is A Kitchen Cabinet | online information
How Tall Is A Kitchen Cabinet | online information from i.pinimg.com
This is for an ikea installation but you can use the same theory for any custom. Kitchen floors, especially those in older homes, are often not perfectly level and flat. Beginning from the mark indicating the high point of the floor, measure up exactly 34 1/2 inches (the standard height of base kitchen cabinets) and mark. You will also see how to attach the feet and adjust the height of your cabinets to keep them level on an uneven floor. The base cabinet is the standard storage unit of any flat pack kitchen. They are quite expensive to install because they are one of the most versatile and sturdy in nature. Measure base cabinets and use the pencil and level to mark a level line on the wall from the high point in the floor. But if you have lower cabinets which are of a custom height, then we might need to treat them differently.

Find out what impacts this number before installing some in your kitchen.

Not only do they provide storage space, they also provide support for kitchen countertops and sinks the width of base cabinets vary much more than the height as it may be anywhere between 12 and 48 inches. The standard height for a kitchen bar is 39 to 42 inches from the floor to the counter. Choose kitchen cabinets from a wide range of heights, widths, depths and colours. If your base cabinets are regular 34 and a half inches, then simply place your upper cabinets 18 inches above them, and you should be good to go. Cabinets over the sink are different than the standard wall cabinet height usually starts at a total of 80 or 96 inches from the floor. Height of kitchen cabinets sinulogus via sinulog.us. Base cabinets are the key element in planning a layout of the kitchen. You will also see how to attach the feet and adjust the height of your cabinets to keep them level on an uneven floor. Base cabinets do the bulk of the work in the kitchens. All of our 'ready to fit' kitchen cabinets come prepared for you to assemble at home. The ideal height at which to install upper cabinets depends on a combination of factors—the height of base cabinets, for starters, as. The toe kick measures 4 1/2 high, the door is tall kitchen cabinets reach from the floor all the way up to the ceiling. These sturdy, essential pieces go right on the floor and do the heavy lifting when it comes to storage.

Base cabinets are traditionally 34 12 height. Standard counter height for kitchen furniture efficiency kitchen. Counters are laid on them, sinks installed within them, dishwashers and ranges base cabinet height is the dimension that is least variable—virtually all base cabinets come from the factory at 34 1/2 inches tall. Among the most common are wall, base, and tall cabinets. You may found one other kitchen base cabinet height from floor higher design ideas.

How to install kitchen cabinets wall and floor
How to install kitchen cabinets wall and floor from www.carpentry-tips-and-tricks.com
Beginning from the mark indicating the high point of the floor, measure up exactly 34 1/2 inches (the standard height of base kitchen cabinets) and mark. The ideal height at which to install upper cabinets depends on a combination of factors—the height of base cabinets, for starters, as. Don't forget the base cabinets! It add storage, makes kitchen cleaner and more versatile. Should you go for floor to ceiling cabinets in your kitchen. Some households need taller or shorter base cabinets. Base cabinets do the bulk of the work in the kitchens. Cabinets over the sink are different than the standard wall cabinet height usually starts at a total of 80 or 96 inches from the floor.

The top of tall kitchen cabinets aligns with the top of the wall cabinets.

Ceiling height cabinets are very useful and important in your kitchen. Create your personal base cabinet combination. Base cabinets hold larger kitchen items like kitchenaid mixer, large pots, and other items you`re less likely to move about. Base cabinets are traditionally 34 12 height. The ideal height at which to install upper cabinets depends on a combination of factors—the height of base cabinets, for starters, as. If you add in the countertop, they are. Among the most common are wall, base, and tall cabinets. These sturdy, essential pieces go right on the floor and do the heavy lifting when it comes to storage. Not only do they provide storage space, they also provide support for kitchen countertops and sinks the width of base cabinets vary much more than the height as it may be anywhere between 12 and 48 inches. It add storage, makes kitchen cleaner and more versatile. Now that we have known the standard kitchen cabinet heights and various kitchen cabinet dimensions, how do we decide that is the only correct height for everyone at home?? The toe kick measures 4 1/2 high, the door is tall kitchen cabinets reach from the floor all the way up to the ceiling. Base cabinets, frame height 30.

Posting Komentar

0 Komentar